Wohnungsbörse
Kleinraming I - Whg. Nr. I/D/6
Preise
- Gesamtmiete netto:
- 264,98 €
- Gesamtmiete USt.:
- 26,50 €
- Gesamtmiete brutto:
- 291,48 €
- Gesamtbelastung netto:
- 264,98 €
- Gesamtbelastung USt.:
- 26,50 €
- Gesamtbelastung brutto:
- 291,48 €
- Summe Nettomiete:
- 184,09 €
- ISO Währung
- EUR
- Kaution
- EUR 1.200,-
Kontaktperson
- Name:
- Jürgen Dicketmüller
- Telefon:
- 07252/52932-70
- E-Mail:
- j.dicketmueller(at)styria-wohnbau.at
Dokumente/Wohnungspläne
Details
- Objektnr. extern:
- 4023/117300
- Stand vom:
- 11.03.2026
- Nutzungsart:
- Wohnen
- Vermarktungsart:
- Miete
- Objektart:
- Wohnung
- Straße:
- Kirchenplatz 2
- Ort:
- 4442 Kleinraming
- Verfügbar ab:
- ab sofort
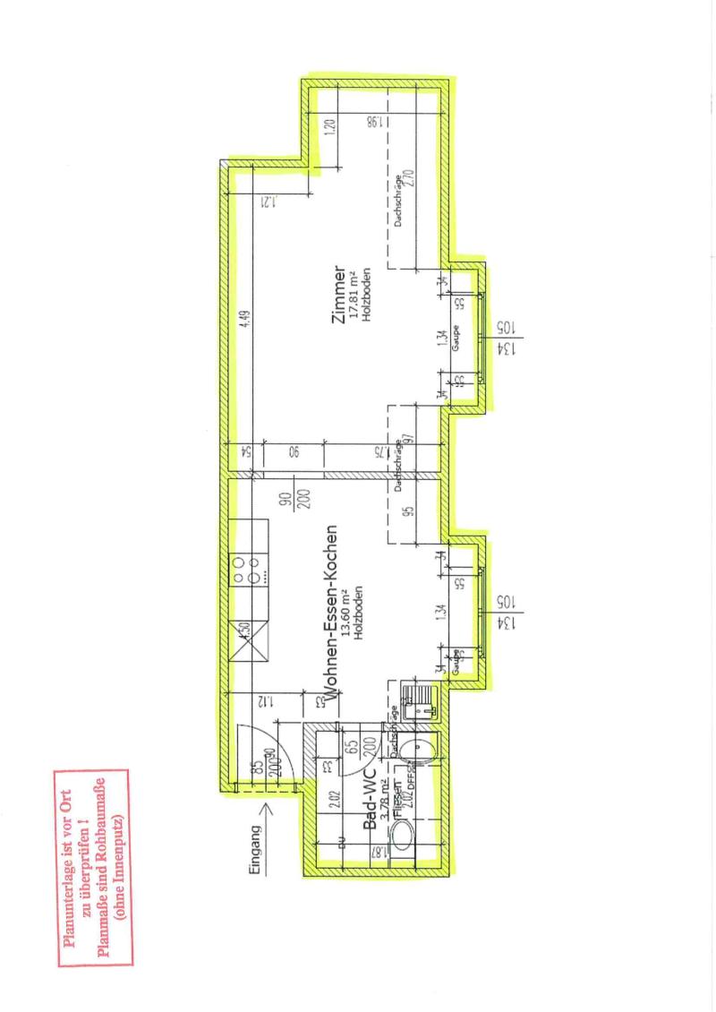
- Wohnfläche:
- 35,19 m²
- Anzahl Zimmer:
- 2
Energiepass
- HWB-Wert:
- 103,2 kWh/(m²*a)
Objektbeschreibung:
Unbefristeter Mietvertrag mit kostendeckender Mietkalkulation eines gemeinnützigen Wohnbauträgers.